This lovely home is situated in a convenient location, just 7 minutes from Central Festival and within 17 minutes from nearby international schools such as Tonkla, NIS, and Mill Hill. Chiang Mai International Airport can be reached in less than 25 minutes, making the location ideal for both living and investment.
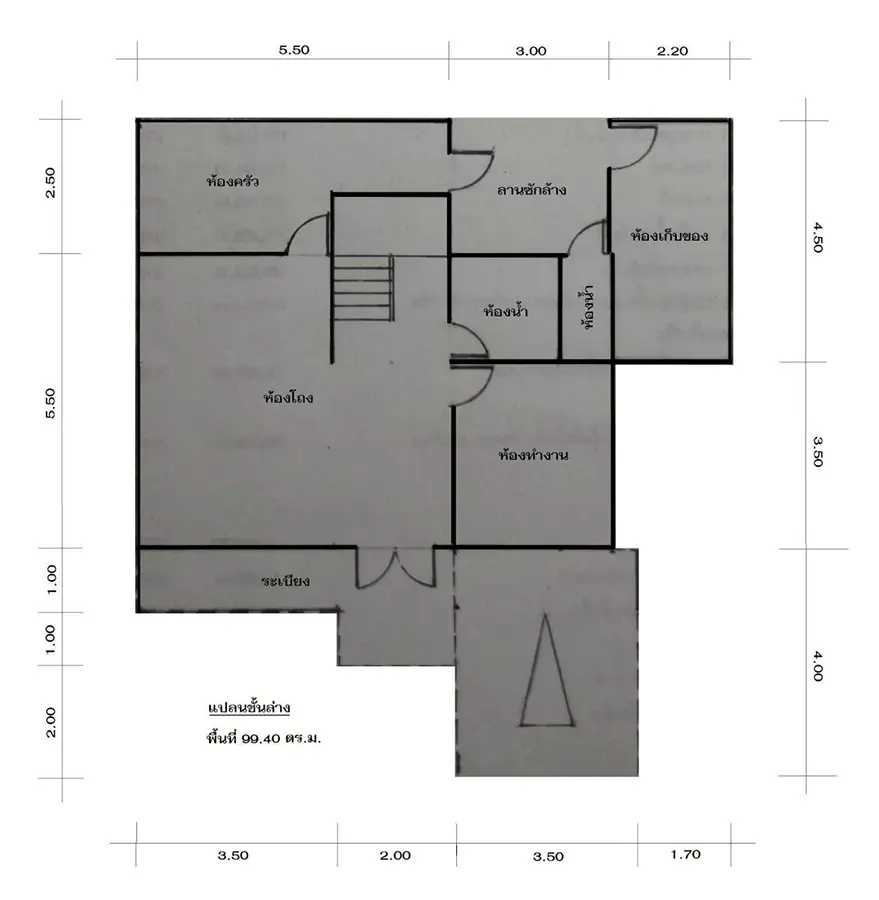
The front of the house features a spacious yard and a cozy sitting area on the front terrace. Stepping inside, you’ll find a bright living area and a staircase leading to the second floor. On the right-hand side is a home office and a shared bathroom. Toward the back is a well-equipped kitchen with a built-in counter and hanging cabinets, connecting to an extended multipurpose room with its own bathroom — perfect for flexible use.
Upstairs, there is a shared bathroom and access to the balcony. The house features three bedrooms in total. The master bedroom has a high ceiling, giving the space an airy, comfortable feel, while the second and third bedrooms are spacious and filled with natural light. The front view of the house overlooks a peaceful garden, providing privacy and a pleasant atmosphere. There is covered parking space for two cars.
This is an established neighborhood with no common area fees. The house is well-suited for personal living, business use, or investment. The owner also allows short-term rentals such as Airbnb or using the property as an office.
** No pets allowed
Compare listings
ComparePlease enter your username or email address. You will receive a link to create a new password via email.